
68 Airport Road, Omarama, Waitaki
Land area
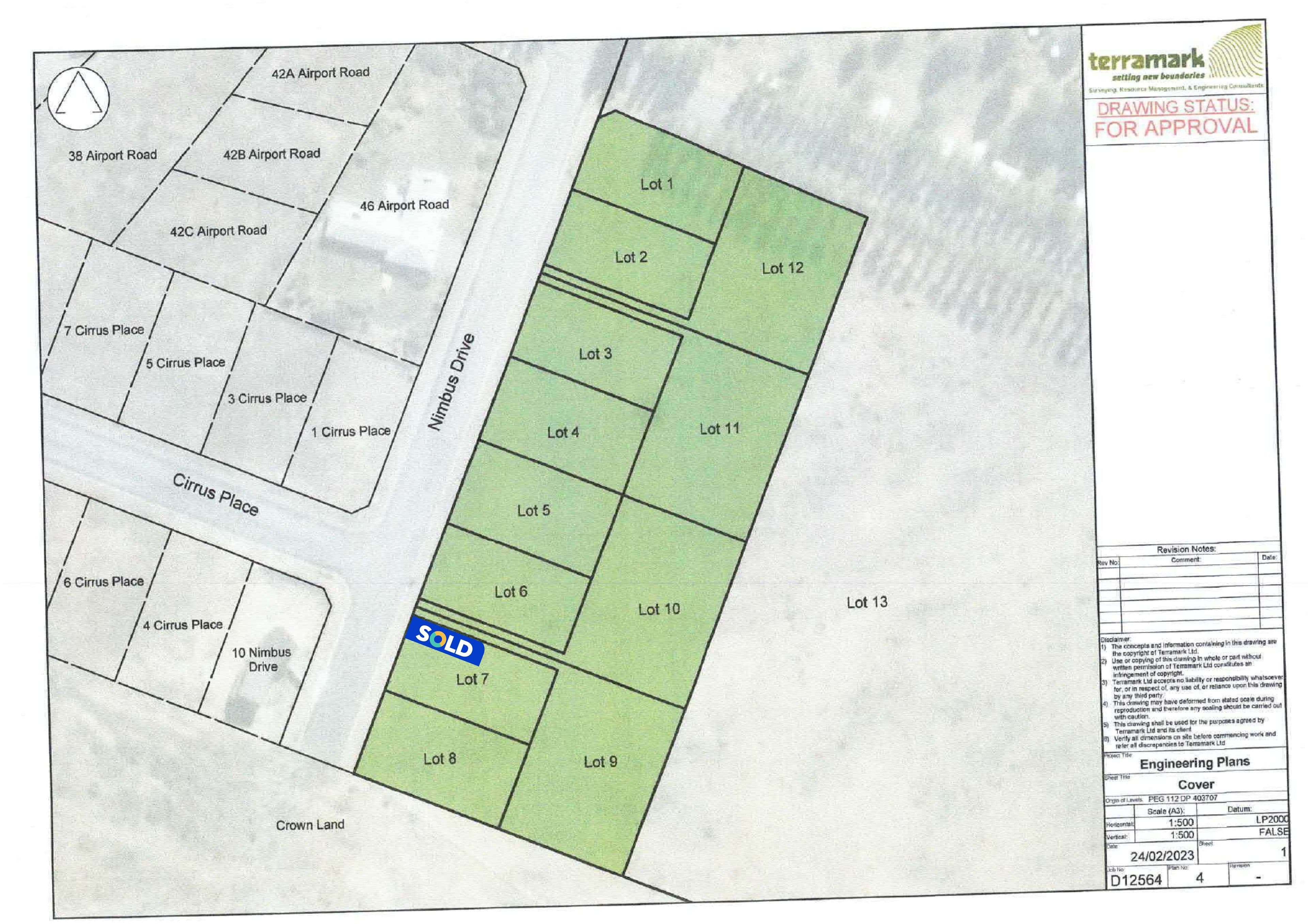
700m2
Updated 9 months ago
Full Property Pack
Make an enquiry
We may not have any upcoming open homes but we can usually schedule a private visit.
Secure your slice of Omarama now from $260,000 . . From 630m2 to 1200m2 and lie beautifully to build or transport in your new holiday or permanent home. Adjacent to the airfield and Omarama's world famous gliding centre together with the myriad of outdoor activities on offer at your doorstep. Cycle trails, Hot tubs Clay cliffs, lakes & rivers, skiing plus being the gateway to Wanaka Queenstown Mt Cook Tekapo and the Waitaki valley. I suggest you get in early to avoid disappointment. Omarama has been the sleeping giant with limited land available . Realistic covenants will make your journey easy with all services at the boundary
Cleary defined signboard on site corner of Airport Rd & Nimbus Place.
Show more
We can send you links to all of the documents we have on hand for this property.
Including Council documents and titles if available.
Allow 5-10 mins for the request to be processed.
Updated 9 months ago
Full Property Pack
Make an enquiry
TBC